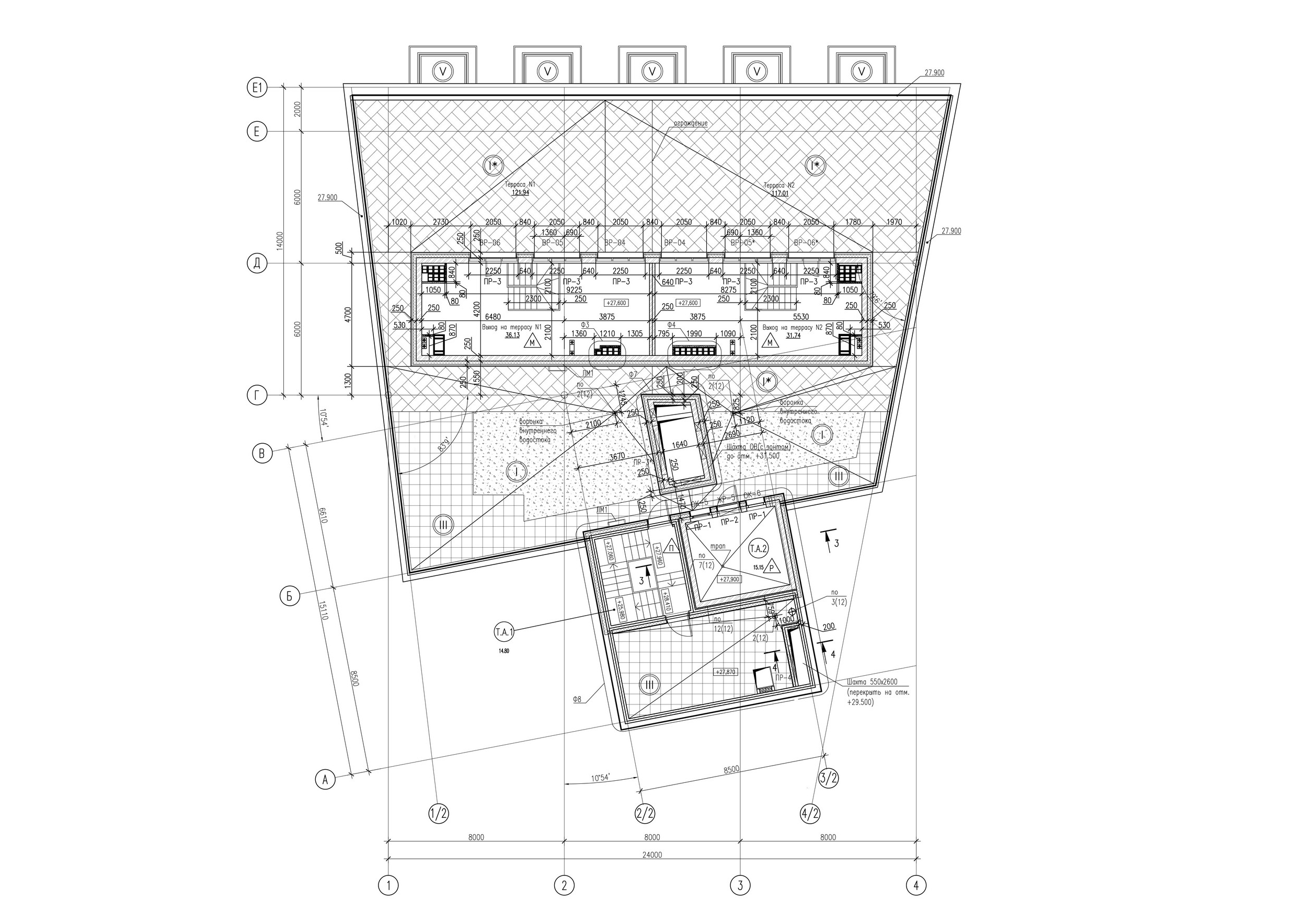
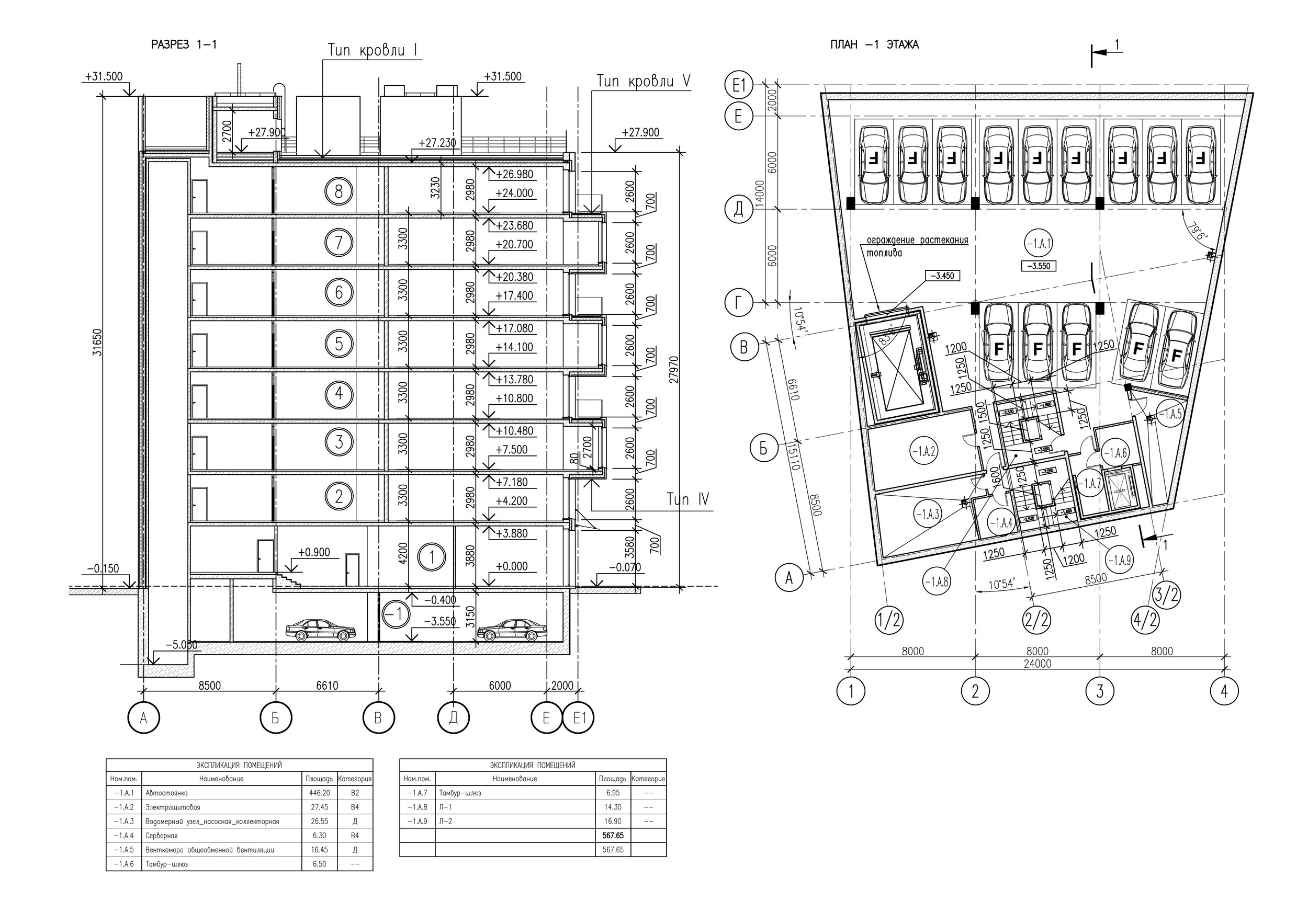
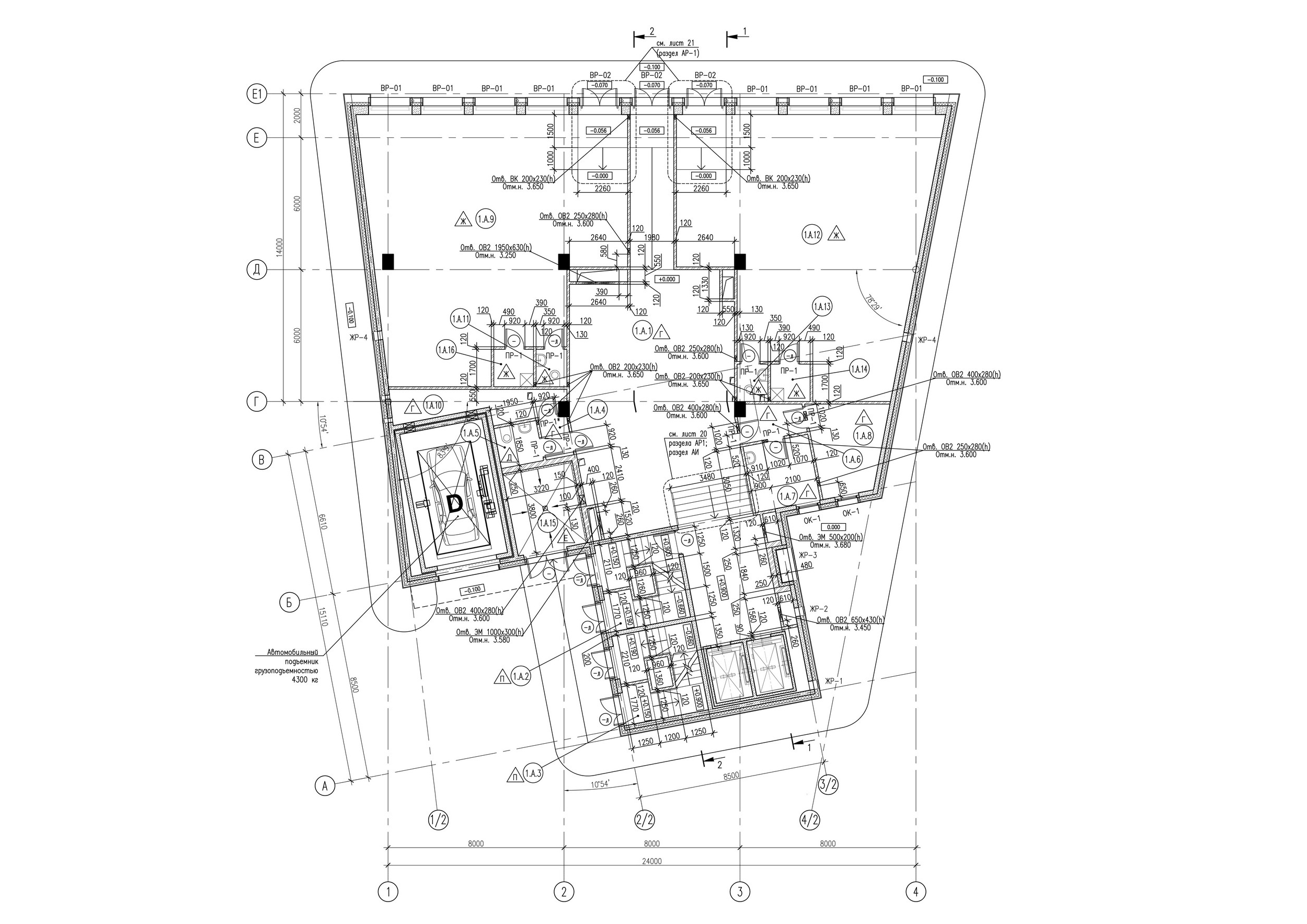
Коворкинг Avenue Page

Заказчики
ООО «БЕСТ»
Адрес
Санкт-Петербург, ул. Академика Павлова, 5К
Проектирование
2012-2018
Строительство
2017-2019
Площадь участка
1165 кв. м
Общая площадь
4836,9 кв. м
Этажность
8 этажей
Руководитель коллектива
Е.Л. Герасимов
ГАП
З.В. Петрова
Архитекторы
Е.А. Резникова (рук. группы), И.Г. Бахорина , А.Г. Гвоздик, И.В. Хухка,
Е.В. Боченкова
Главный конструктор
М.Я. Резниченко
Конструкторы
Д.А. Астапчик (зам. гл. конструктора), Е.В. Егорова (рук. группы), Ю.И. Ильина, П.С. Култышев, С.А. Двуреченский, Е.Н. Выгодина, Н.Э. Гусева, Д.В. Беличев, С.П. Ненашев, А.С. Денисов

Генплан
Е.Н. Кузнецова
Инженерные сети
ООО “Питер Мастеровой”
Главный инженер проекта
Н.В. Гражданова
Фото
Андрей Белимов-Гущин
Макет
«ГрадМакет»
Дизайн интерьера
Анна Саркисьянц
Скульптор
Антонина Фатхуллина

Описание

Архитектурное решение коворкинга обусловлено в первую очередь его местоположением: участок выходит на красную линию набережной Большой Невки; по сути, это была последняя лакуна Аптекарской набережной.

Читать дальше
Пресса о проекте
Фриланс у реки
Коворкинг по проекту бюро «Евгений Герасимов и партнеры» завершает ансамбль Аптекарской набережной и предлагает комфортное рабочее пространство с видом на Большую Невку.
Читать на archi.ru
Награды проекта

Бронзовый диплом смотра Санкт-Петербургского союза архитекторов России «Архитектон-2020» в номинации «Постройки» — «Здание или комплекс с преимущественно общественной функцией».

Диплом международного фестиваля «Зодчество». Архитектурные произведения 2018-2020 гг. Постройки. Номинация - «Объект социального и культурного назначения».


Следующий проект