The Project of the Futurist Residential Complex

Project Owners
“Spetsializirovannyi Zastroischik Lambri” Limited Liability Company
Address
St. Petersburg, Barochnaya Str., 4
Designed
2016-2018
Plot Area
14077 sq. m
Built-Up Area
4782 sq. m
Gross Internal Area
46393 sq. m
Number of Storeys
3-9 storeys
Number of Apartments
199
Head of the Authors Team
Evgeny Gerasimov
Chief Project Architect
Zoya Petrova
Architects
Yevgeniya Reznikova (Head of the Group), Ivan Khukhka (Leading Architect of the Project), Yevgeniya Bochenkova, Sofia Yegorova, Alexander Gvozdik, Marina Gorbatenkova
Chief Structural Engineer
Margarita Reznichenko
Structural Engineers
Dmitry Astapchik (Deputy Chief of the Design Engineers Group), Denis Podgorny (Head of the Group of Design Engineers), Marina Inger, Alexandra Blinova, Andrey Denisov, Artiom Alimirzoev, Olga Shevchenko
General Layout
Yelena Kuznetsova, Alexandra Titova
Utilities
Piter Masterovoy Co.
Chief Project Utility Engineer
Natalia Grazhdanova

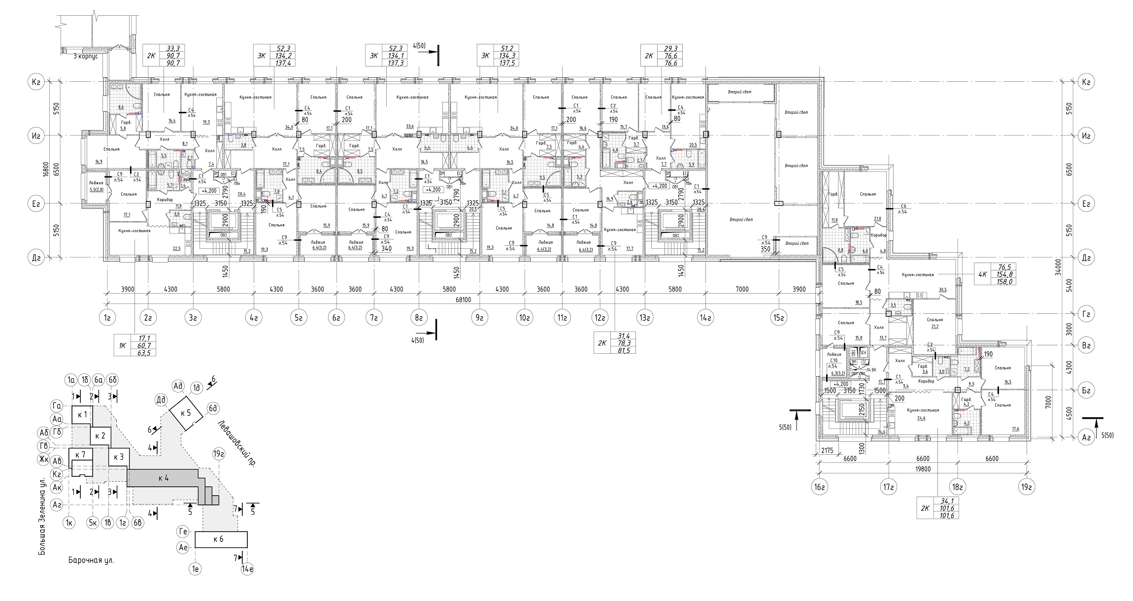
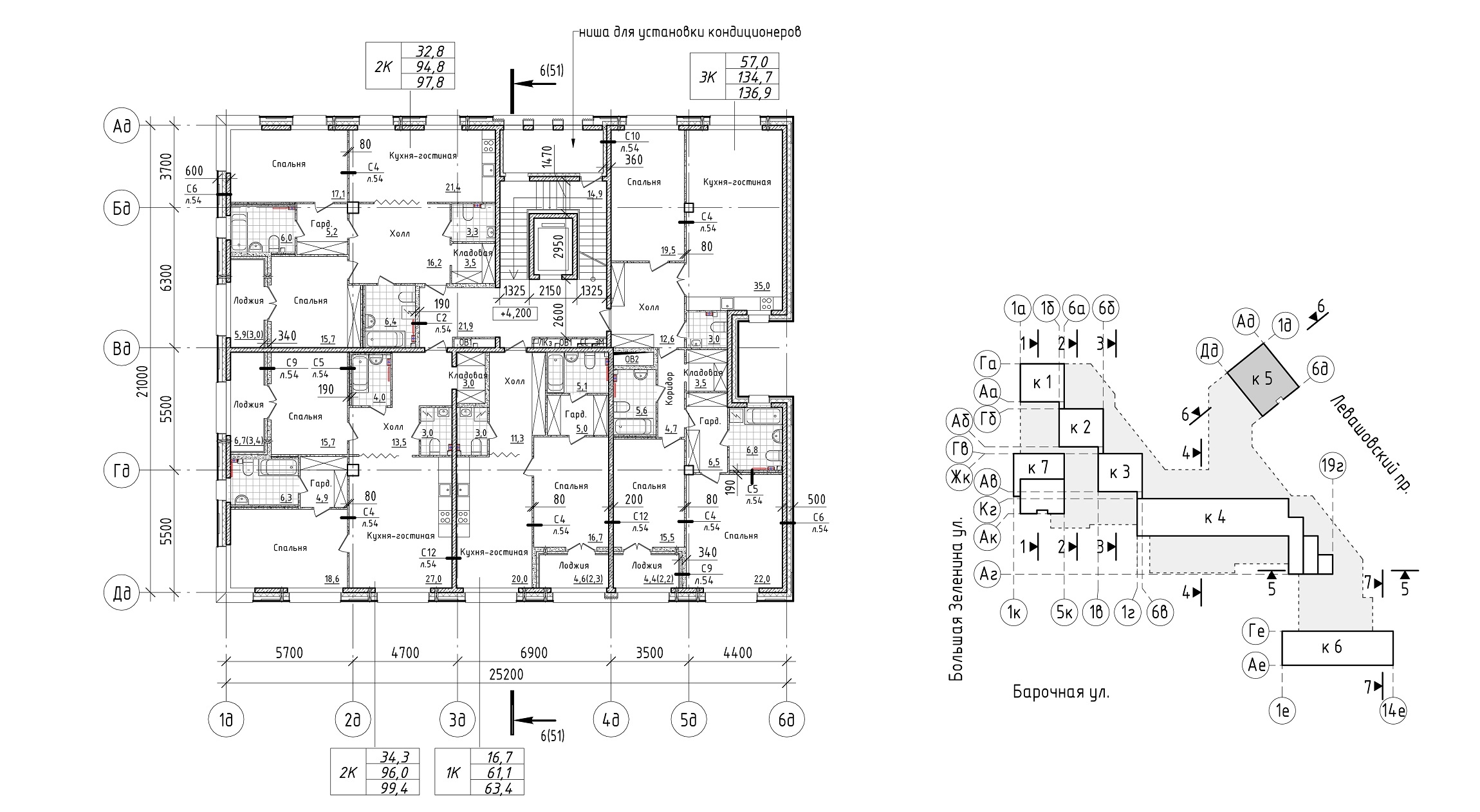
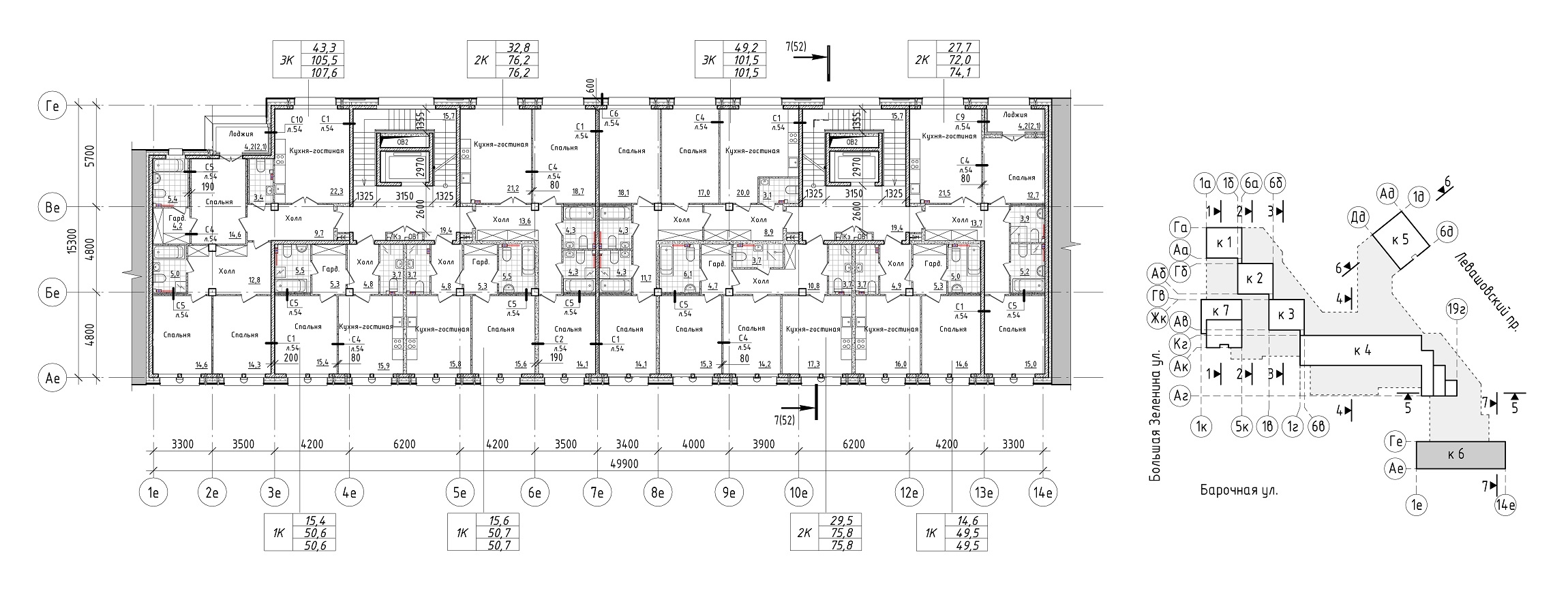
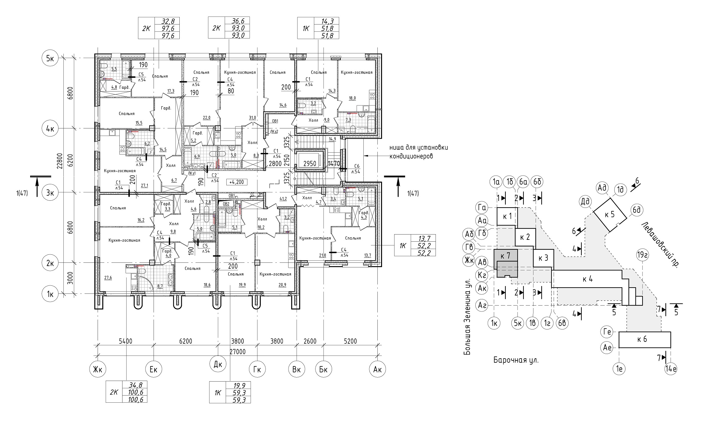
Description

The art-deco residential buildings create a rhythmic composition around a constructivist landmark, that being the former Levashovsky Bread Factory.

Read More
References in Media
The most beautiful new buildings in St. Petersburg
Rosettes appeared on the facade of the Futurist house, referring to the patterns on Soviet cookies from a local bakery
THE FUTURIST RESIDENTIAL COMPLEX
The art-deco residential buildings create a rhythmic composition around a constructivist landmark, that being the former Levashovsky Bread Factory
Read more
Between the Past and the Future
The Futurist residential complex is balanced between Post-Constructivism and Art Deco and has been neatly introduced into the architectural environment of the respectable Petrogradskaya Side. Yet the main task here was to highlight the Levashovsky Bakery Plant building and thus to bring life back to it.
Read at Archi.ru
Zodchestvo 2018 awards
Two facilities designed by the Workshop have received awards at the Zodchestvo festival: the design of the FUTURIST Residential Complex received a silver badge and a diploma, while the Europa City residential complex on Medikov prospect received a diploma of the Russian Architects Association in the Buildings category.
Awards

A silver badge of the international Zodchestvo festival. Works of Architecture of 2016-2018. Building designs. Multiapartment Residential Houses

A diploma of the Golden Trezzini 2019 contest winner for the Best premium and business class residential complex design

Urban Awards-2019. Grand Prix

The charitable foundation for the support of culture and art DICTUM FACTUM was awarded at the XXXI International Architectural Festival «Zodchestvo 2023» in the competition «Best Printed Publication on Architecture and Architects» for the monograph «Architect Boris Girshovich»: awarded a Gold Sign in the nomination «Best Album on Architecture and architects».

 The book was published on the initiative and with the financial support of the Charitable Foundation for the Support of Culture and Art DICTUM FACTUM: Evgeny

and Yulia Gerasimov.

 Author: Alexander Chepel

Photography: Sergey Vesnin, Sergey Karaulov, Victor Savik, Ivan Smelov

  ADDAWARDS.RU 

Golden Trezzini 2024